Il Progetto Mandarinarte si articola in due fasi; la riqualificazione dell’immobile confiscato alla Mafia per la realizzazione di un centro culturale e per la produzione e commercializzazione dei prodotti derivati dalla coltivazione del mandarino tardivo, e la creazione della rete di attività dedicate all’integrazione sociale e attività ludico/ricreative per la comunità cittadina del quartiere Ciaculli – Croceverde Giardina.

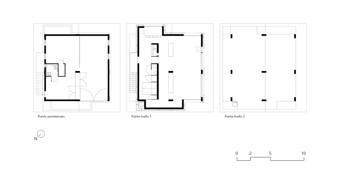
Il progetto architettonico prevede il completamento e la riqualificazione dell’immobile e dell’area agricola di contrada Valdaura – Ciaculli. L’immobile, di natura abusiva e posto sotto sequestro negli anni ‘90, si presenta allo stato di fatto come una struttura intelaiata in c.l.s. sviluppato su tre livelli.

Il progetto prevede la chiusura dei livelli -1 e 0, con un sistema di facciata ventilata realizzata in pannelli di policarbonato alveolare ad alte prestazioni termiche. La “pelle” semitrasparente permette un sistema d’illuminazione per la trasformazione radicale della volumetria del manufatto, da edificio simbolo dell’illegalità a faro per la legalità.

Il livello 2, volutamente “incompleto”, definisce la volumetria dell’edificio come testimone di una memoria cui è legato il luogo, teatro di eventi e personaggi indissolubilmente legati alla Mafia.